Grapperia Bonollo
Bonollo Distillerie
Mestrino (Padova)
Bonollo Distillerie
Mestrino (Padova)
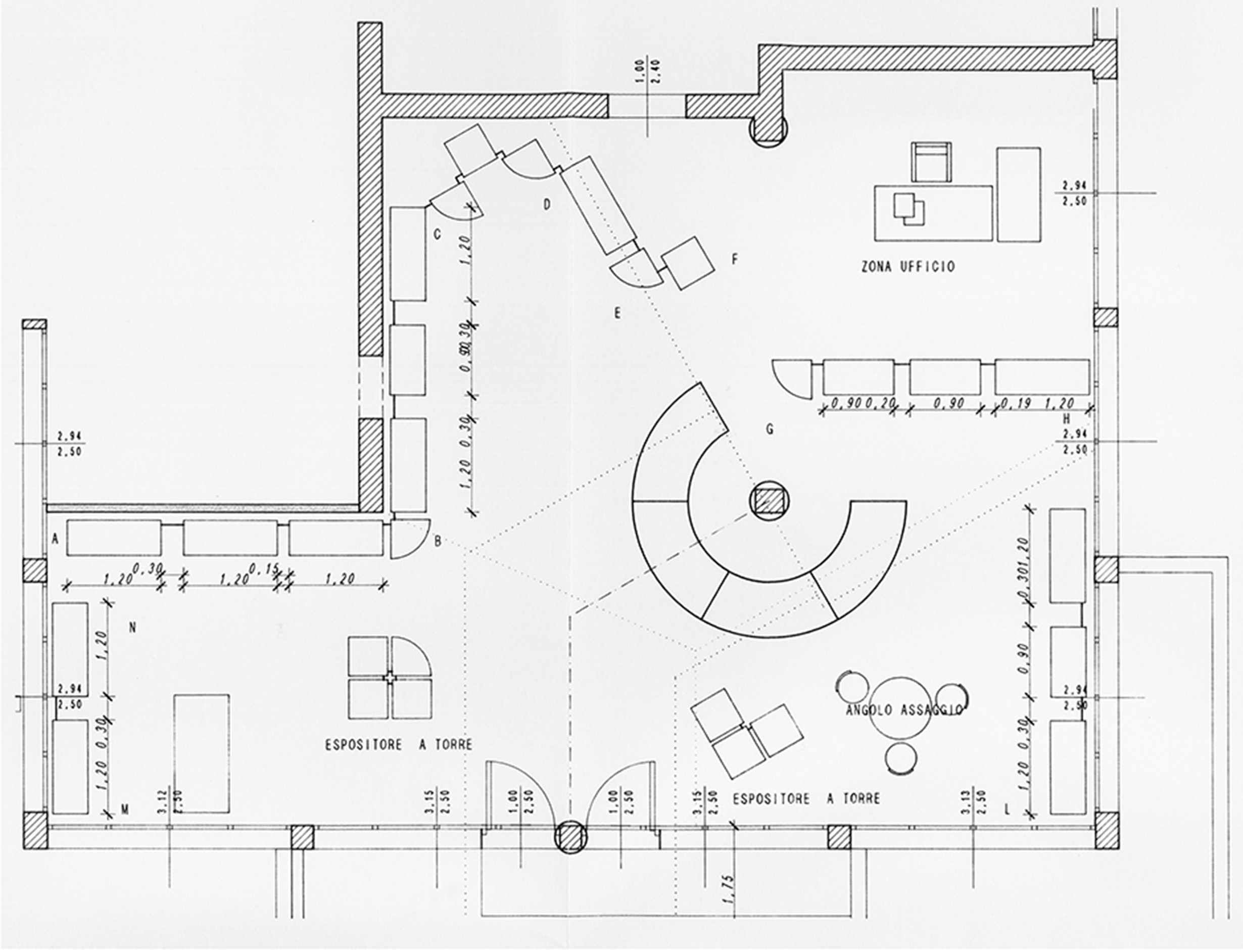
Il progetto, realizzato nella sede principale delle Distillerie Bonollo, è stato sviluppato in considerazione delle nuove esigenze commerciali dell’azienda e ha riguardato la riorganizzazione degli spazi e delle funzioni all’interno del negozio esistente con la creazione delle aree shop, degustazione e zona ufficio. La differenziazione degli spazi è stata ottenuta elaborando un disegno completamente “su misura”, utilizzando un arredamento con elementi modulari e flessibili che potessero in qualche modo assecondare la conformazione degli spazi architettonici con la massima libertà compositiva.
A scaffalature tradizionali, separate da pannelli d’arredo che hanno creato dei vuoti di “alleggerimento”, sono stati progettati degli elementi con ripiani a quarto di cerchio di diversa altezza con funzione di “cerniera” nella composizione degli espositori. Raffinate vetrinette con struttura in ferro, vetro e rame completano la serie degli elementi d’arredo.
La pavimentazione, la particolare forma del controsoffitto, le predisposizioni impiantistiche e l’illuminazione realizzata, integrano le considerazioni puntuali sull’organizzazione dell’allestimento della grapperia.